- Apr 22: EXTENDED to 22 Apr;Closure:30 Mar-22 Apr 2026; 07:30-17:00; Clearway Parking Zone; Hatchs Hill, Steamers Hill and Angarrack Lane (3 days)
- Apr 24: Mobile Library | Friday 24 Apr 2026 (6 days)
- May 22: Mobile Library | Friday 22 May 2026 (34 days)
- Jun 19: Mobile Library | Friday 19 Jun 2026 (62 days)
180823 Approved with conditions | PA18/00895 | Rear extension | The Angarrack Inn 12 Steamers Hill Angarrack TR27 5JB
Submitted by via Cornwall Co... on Mon, 27/08/2018 - 10:15.
| | Date Published | Document Type | Measure | Drawing Number | Description | View |
|---|---|---|---|---|---|---|
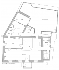
| 23 Aug 2018 | Plan - Proposed | | GS077/02 B | PROPOOSED PLANS | | |
| 23 Aug 2018 | Decision Notice | | ACFULZ - CONDITIONAL APPROVAL | | ||
| 23 Aug 2018 | Officer Report | | DREPORT DELEGATED OFFICER REPORT | | ||
| 12 Feb 2018 | Plan - Existing Mixed | | GS077-01 | | ||
| 12 Feb 2018 | Plan - Proposed Mixed | | GS077-02 | FLOORS AND ELEVATIONS | | |
| 27 Jan 2018 | Plan - Existing Mixed | | GS077-01 | EXISTING PLAN AND ELEVATION | | |
| 27 Jan 2018 | Plan - Proposed Mixed | | GS077-02 | PROPOSED PLAN AND ELEVATION | | |
| 27 Jan 2018 | Application Form | | APPLICATIONFORMNOPERSONALDATA | |
CONDITIONS:
1 The development hereby permitted shall be begun before the expiration of 3 years from the date of this permission.
Reason: In accordance with the requirements of Section 91 of the Town and Country Planning Act 1990 (as amended by Section 51 of the Planning and
Compulsory Purchase Act 2004).
2 The development hereby permitted shall be carried out in accordance with the plans listed below under the heading "Plans Referred to in Consideration of this
Application".
Reason: For the avoidance of doubt and in the interests of proper planning.
- Printer-friendly version
- Login or register to post comments
- Permalink
Contributions
- Angarrack Defibrillator Team (25)
- Angarrack Inn (336)
- Angarrack Methodist Chapel (3)
- Carol (15)
- Gail (1)
- GordonG (12)
- Hayle Development Group on Facebook (5)
- Hayle Harbour Authority (4)
- Hayle Town Council (5)
- louise (1)
- Lynne (111)
- Mal (1)
- MattBuckley66 (9)
- Neil (22)
- Neils Garden Care (9)
- Russell (21)
- Secretary - Christmas Lights (141)
- Steve (3)
- webmaster (5122)
Book page
Facebook - Angarrack Inn
- We are looking forward to celebrating our first year anniversary running the Ang...
- Getting ready for Sunday roast , it's smells really good ! :)
- Pub quiz tonight !! Come on join us !! :)
- Happy Birthday again Mrs Joan Cook ! It has been a brilliant night ! #buffet #lo...
- Quizmaster Kenny has nearly picked his own brain out writing tonight's quiz! Com...
- Thank you so much guys for your support ! Travellers Award the 2015 Certificate...
- Our opening hours 7 days a week come on join us ! ^_^
- <a href="/671881132899709/photos/a
- Book your table now ! :) It's Curry Night on Thursday at the Angarrack Inn ! 3 C...
- Don't forget you can take away fish and chips on a Friday night !! :)
Similar
- 180221 | PA18/00895 | Rear extension | The Angarrack Inn 12 Steamers Hill Angarrack TR27 5JB
- Approved with conditions | PA18/04517 | Construction of extension and entrance porch to existing dwelling - 13 13A Steamers Hill
- PA18/04517 | Construction of extension and entrance porch to existing dwelling - 13 And 13A Steamers Hill Angarrack Hayle Cornwa
- CLOSED | PA18/01106/PREAPP | Pre-application advice for use of garden as a camping site (tents only) for tourist holiday use and
- REFUSED: PA17/11764 | Listed building consent application for removal of garden potting shed & construction of garage &artist st
Similar across site
- 180823 Approved with conditions | PA18/00895 | Rear extension | The Angarrack Inn 12 Steamers Hill Angarrack TR27 5JB
- 180221 | PA18/00895 | Rear extension | The Angarrack Inn 12 Steamers Hill Angarrack TR27 5JB
- Approved with conditions | PA18/04517 | Construction of extension and entrance porch to existing dwelling - 13 13A Steamers Hill
- PA18/04517 | Construction of extension and entrance porch to existing dwelling - 13 And 13A Steamers Hill Angarrack Hayle Cornwa
- CLOSED | PA18/01106/PREAPP | Pre-application advice for use of garden as a camping site (tents only) for tourist holiday use and













Recent comments
11 weeks 3 days ago
16 weeks 3 days ago
16 weeks 3 days ago
31 weeks 3 days ago
51 weeks 3 hours ago
51 weeks 3 hours ago
51 weeks 3 hours ago
51 weeks 3 hours ago
1 year 20 weeks ago
1 year 35 weeks ago